Добро пожаловать на http://vipplan.ru

Випплан Борисоглебск - это тысячи проектов домов в нашем каталоге!

Вы всегда сможете найти для себя проект дома вашей мечты! Даже если этого не случилось, мы готовы в любую минуту предложить проект индивидуального дома.

Забыли пароль?
Вы еще не регистрировались?

Перейдите по ссылке ниже на страницу регистрации.

Регистрация...

Внимание!!!

В проектную документацию могут быть внесены изменения любой сложности, в соответствии в Вашими пожеланиями!

Полезные статьи

Выбор участка для строительства дома

Если вы решили приобрести участок земли и построить на нем дом или дачу. То данная статья специально для вас. А так же мы поможем вам в выборе проекта для выбранного вами участка....

Мероприятия по получению разрешения на строительство в Борисоглебске

Хотите построить дом в Борисоглебске? Не знаете с чего начать? Для начала, нужно заказать проект, а после получить разрешение на строительство. ...

Проекты домов и коттеджей > Каталог проектов домов > Проект одноэтажного дома с широкой террасой Vg2352

Проект одноэтажного дома с широкой террасой Vg2352

Проект одноэтажного дома с широкой террасой
Зарегистрируйтесь

Проект № Vg2352


Техническое описание
Общая площадь: 163.22 м2
Жилая площадь: 86.05 м2
Высота здания: 7.75 м
Размеры дома: 9.94м×14.54м
Кол-во комнат: 5
Цокольный этаж: нет
Гараж: нет
Мансарда: есть

Kонструкция
Фундамент: стена в грунте (щелевой)
Перекрытия: сборные ж/б плиты, деревянные балки
Материал стен: Газобетон

Архитектурный раздел
Конструктивный раздел

Смета на строительство
АР+КР - 56 000 (Со скидкой 20%)
Модель проекта индивидуального двухэтажного жилого дома с подвалом с размерами здания 9,94 x 14,54 м. Наружная отделка здания – облицовочный кирпич. Фундамент – стена в грунте (щелевой). Наружные стены – газобетон. Внутренние стены - газобетон. Перегородки - газобетон, каркасные с ГКЛ. Пол подвала - пол по грунту. Пол 1 этажа - пол по сборным плитам. Межэтажное перекрытие - деревянные балки. Крыша двускатная. Кровля – металлочерепица. Окна — металлопластиковые.
Генплан застройки участка / Паспорт проекта 7000 руб / 10000 руб
Инженерный раздел (полный) 81500 руб
Смета на строительство 30563 руб (40750 руб)
Теплотехнический расчет материалов стен Бесплатно
Стоимость проекта со незначительнми изменениями 65900 руб
Стоимость проекта со средними изменениями* 78200 руб
Стоимость проекта со значительными изменениями** 81400 руб

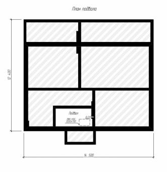
План цокольного этажа


Помещение — 8,09 м2

План первого этажа


Тамбур — 3,24 м2
Холл — 11,63 м2
С/у — 1,35 м2
С/у — 6,9 м2
Бойлерная — 2,94 м2
Кухня — 14,32 м2
Гостиная — 25,6 м2
Кладовая — 2,32 м2
Спальня — 22,65 м2
Гардероб — 4,58 м2
Спальня — 13,6 м2

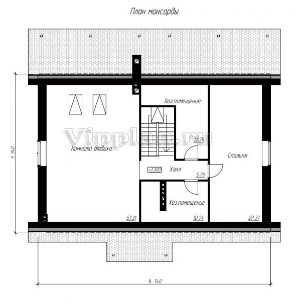
План мансардного этажа


Холл — 5,79 м2
Комната — 51,31 м2
Подсобка — 12,79 м2
Подсобка — 10,74 м2
Спальня — 29,37 м2
Проект одноэтажного дома с широкой террасой Проект одноэтажного дома с широкой террасой Проект одноэтажного дома с широкой террасой Проект одноэтажного дома с широкой террасой

Модификации проектов

Внесение изменений и привязка к участку строительства

В любой из проектов от компании VIPplan - Борисоглебск по вашему желанию могут быть внесены изменения в материалы стен, материалы наружной отделки дома, а также будет произведена адаптация проекта под конкретный регион строительства (с учетом грунтов региона, геологических особенностей вашего участка и местных климатических условий) - БЕСПЛАТНО !!! (кроме проектов со скидкой и проектов наших партнеров).

Любой из проектов, размещенных на сайте borisoglebsk.vipplan.ru мы можем выполнить из требуемых вам строительных материалов: ячеистый бетон (газобетон, пеноблок), керамоблок, кирпич, шлакоблок, бетонный блок, дерево (брус, клееный брус), каркасная технология (деревянный каркас, металлокаркас (ЛСТК)).

Фасад дома и его наружную отделку так же возможно выполнить с применением различных облицовочных материалов: структурной штукатурки, (с утеплителем и без), сайдингом (пластиковый или металлосайдинг), фиброплитами, кирпича.

 
6 Избранные
проекты

Доставка проектов по России: Москва (Московская область), Санкт-Петербург (Ленинградская область), Краснодар, Ростов-на-Дону, Ставрополь, Сочи, Волгоград, Новосибирск, Белгород, Брянск, Воронеж, Саратов, Хабаровск, Астрахань, Нальчик, Владикавказ, Екатеринбург, Тюмень, Самара, Нижний Новгород, Казань, Пермь, Уфа, Челябинск, Красноярск, Ханты-Мансийск, Иркутск, Курган, Оренбург, Омск, Томск, Барнаул, Новокузнецк, Кемерово, Абакан, Чита, Якутск, Южно-Сахалинск, Петропавловск-Камчатский и страны ближнего зарубежья: Белоруссия, Украина, Казахстан